
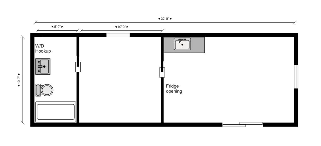
The Phoenix Bandit park model home dimensions are 10’7×32’. The Bandit was designed to be our most portable unit, complete with taillights and scissor jacks installed from the factory. This park model comes ready to go with your color choice of fiber cement “Hardie” board. It also includes a 29 G roof, color of your choice. Contact us today for more information.
Bandit Series

352
Square Feet

1
Bedroom

1
Bathroom

Sections
Single-wide

Dimensions
11' x 34'

Building
Park Model
Floor Plan


Start Your Journey
Explore Park Models
Testimonials
Very nice park model homes. Very unique. Quick to respond and answered all my questions.

Jorge Jr Solis